Du skal søge om byggetilladelse, før du går i gang med at bygge. Det gælder uanset, om du vil bygge et nyt hus, en carport eller andet småbyggeri.

De tre vigtigste ting, før du søger:

  1. Du skal søge om byggetilladelse, før du går i gang med at bygge. Det gælder uanset, om du vil bygge et nyt hus, en carport eller andet småbyggeri.
  2. Spar tid: Hav så fyldestgørende materiale som muligt med, når du sender ansøgningen. Tjek f.eks. om der er en lokalplaner, der gælder for din ejendom.
  3. Vi kan bedst og hurtigst hjælpe dig, hvis vi har den nødvendige viden fra starten.

 

Ofte stillede spørgsmål om byggetilladelser

Her finder du svar på de spørgsmål, der typisk dukker op om tilladelser til at bygge, rive ned eller bygge om.

  • Hvad koster det at søge byggetilladelse?

    Se alle priserne for behandling af byggesager her.

    Du har mulighed for 30 minutters gratis forhåndsdialog - herefter er

    • Prisen for simple konstruktioner er en fast pris på 1210,-kr. Den faste pris for en tilladelse til garager, carporte, udhuse, drivhuse og lignende bygninger herunder overdækkede arealer.
    • Prisen for øvrig byggesagsbehandling afregnes efter timepris på 806,-kr./time.

    Ovenstående priser træder i kraft pr. 1. januar 2025 og erstatter tidligere vedtagne gebyrvedtægter.

    Vejledende priser for byggetilladelser

    Prisen for en byggetilladelse beregnes efter den medgåede tid, som byggesagsbehandleren skal bruge på sagsbehandling af projektet.

    Prisen afhænger derfor af, hvor komplekst projektet er, og hvor godt det er dokumenteret og opfylder krav i lokalplaner og byggelovgivning.

    Byggetilladelser for enfamiliehuse koster normalt mellem 4.500,- og 7500,-. Hvis byggesagsbehandleren kan se projektet bliver dyrere, vil ansøger blive orienteret.

    Byggetilladelser for erhvervsbyggerier svinger meget afhængig af type og kompleksitet, og kan tidligst vurderes, når projektet er fuldt oplyst.

     

  • Hvornår kan jeg forvente en byggetilladelse?

    Vejledende sagsbehandlingstider for byggetilladelser:

    Sagsbehandlingstiden beregnes fra det tidspunkt, du modtager besked om, at dit projekt er klar til sagsbehandling, og du får navnet på din sagsbehandler.

    Du er velkommen til at kontakte din sagsbehandler, så du kan få oplyst den forventede sagsbehandlingstid for dit projekt.

    Sagsbehandlingstiden afhænger af, hvor fyldestgørende projektmaterialet er og af byggesagens kompleksitet. Behandlingstiden afhænger også af, hvor effektivt samarbejdet er mellem ansøger og byggesagsbehandler.

     

  • Hvilke tegninger skal jeg bruge for at ansøge?

    Husk: På de fleste bygningstegninger ser tingene meget mindre ud, end de er i virkeligheden.

    Her er eksempler på de tegninger, du skal bruge:

    Situationsplan i målestoksforhold med alle relevante mål, der viser

    • Alle bygningerne på ejendommen
    • De enkelte bygningers anvendelse.
    • Bygningernes ydre dimension
    • Indbyrdes afstande
    • Afstande til ejendommens skel
    • Bredde på indkørsel
    • Antal parkeringspladser på ejendommen

    Situationsplan - eksempel

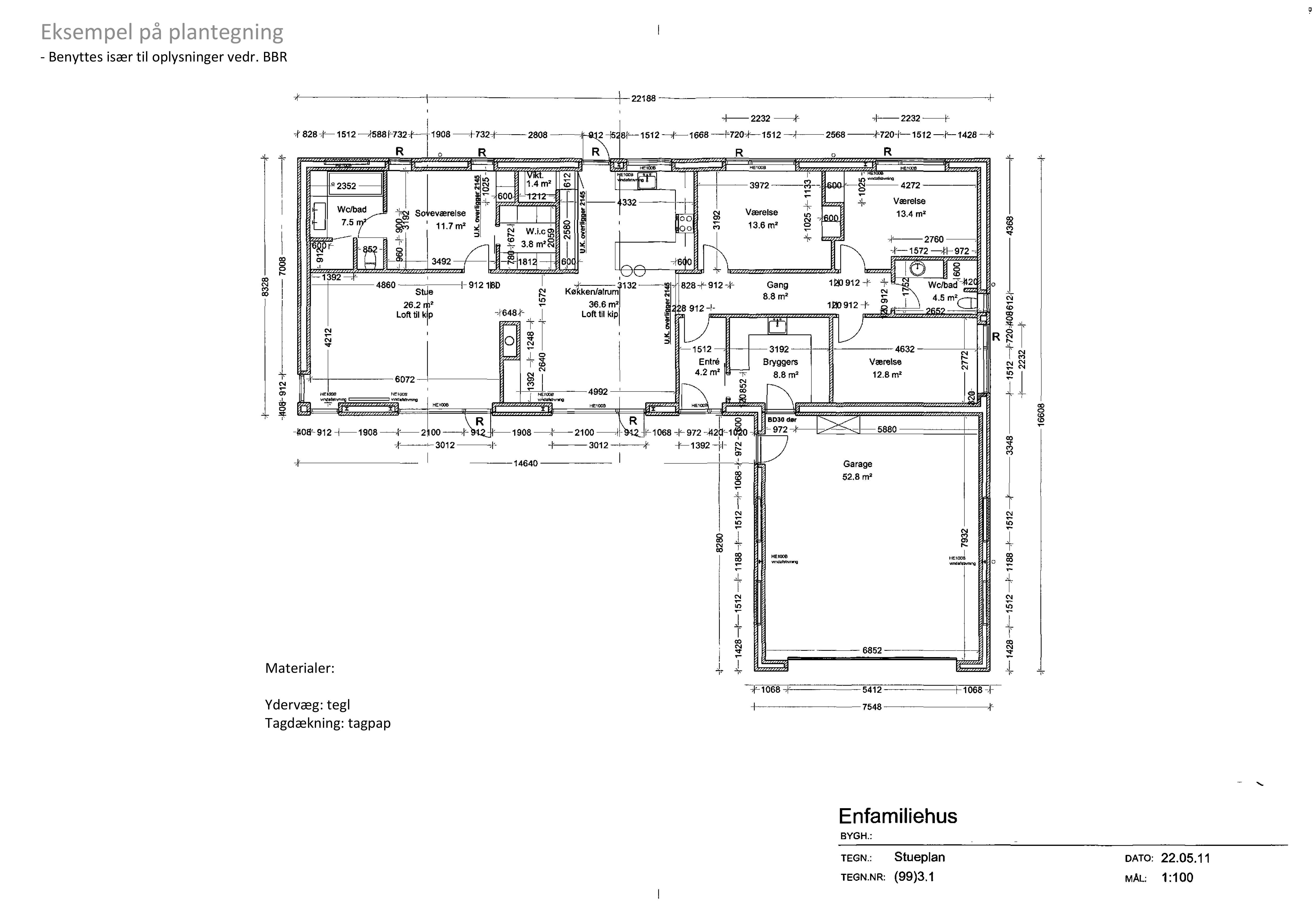
    Plantegning i målestoksforhold. En plantegning viser en bygning set fra oven, i vandret plan.

    Plantegning

    Facadetegning i målestoksforhold. En facadetegning viser bygningen set fra siden.

    Tegningsmaterialet skal indeholde bygningen set fra de fire verdenshjørner og vise:

    • Alle relevante højder
    • Terræn fra bygningen og ud til skel

    En stiplet linje for tidligere terræn og fuld linje for terræn efter byggeriet er opført

     Facadetegning

     

  • Hvad gør jeg, hvis jeg ikke selv kan tegne?

    Hvis du ikke kan tegne dem selv, så tag evt. fat i en rådgiver, der kan hjælpe dig. 

    Tegningerne behøver dog ikke at være professionelle. 

    Vores eneste krav til tegningerne er:

    • At de tydeligt viser, hvad du søger om
    • At de er målfaste

    En målfast tegning har de nøjagtige mål og et målestoksforhold som f.eks. 1:50.

     

  • Hvordan udregner jeg bebyggelsesprocent?

    Bebyggelsesprocent:

    Bebyggelsesprocenten for en ejendom beregnes som etagearealet i procent af grundens areal.

    For enfamiliehuse må bebyggelsesprocenten som udgangspunkt være op til 30%.

    Hvis en lokalplan eller deklaration angiver en anden bebyggelsesprocent, er det den der gælder.

    Sådan foretager du udregningen:  

    etageareal x 100  
    grundens størrelse   = bebyggelsesprocent

    Hvis der er et hus på 150 kvadratmeter og en grund på 750 kvadratmeter, hedder regnestykket:
    150 x 100 
         750        = 20 %

    Hvis der opføres en tilbygningen på 50 kvadratmeter, lyder regnestykket således:
    (150 + 50) x 100 
            750                  = 26,7 %

    Du må i forbindelse med et enfamiliehus have 50 kvm garage eller lign. uden det tæller med i bebyggelsesprocenten.

     

  • Hvad er min bebyggelsesprocent?

  • Hvilke planer gælder der, der hvor jeg vil søge?

    Når du søger via Byg & Miljø, kan du se undervejs, hvad der gælder for din grund eller ejendom.

    Du kan finde alle lokalplaner her.

    Du kan læse kommuneplanen her.

  • Hvor finder jeg servitutter der er på min ejendom?

  • Hvornår skal jeg søge om dispensation?

    Dispensation/helhedsvurdering (overskridelse af byggeretten)

    Hvis byggeriet kræver dispensation/helhedsvurdering, skal der sendes en saglig begrundelse

    Det er din pligt som ejer at søge de nødvendige dispensationer. Det er også din pligt at undersøge, om du skal søge dispensation.

    Der er visse regler, som vi ikke kan dispensere fra. Det gælder bl.a. beregningsregler og administrative bestemmelser, f.eks. hvornår et byggeri kræver byggetilladelse.

    Du skal begrunde, hvorfor du vil søge dispensation/overskride byggeretten.

    Vi tager en konkret vurdering og inddrager saglige hensyn.

    Udsigtsforhold er desværre ikke et sagligt hensyn i henhold til byggeloven.

    I forbindelse med en dispensation, kan vi stille visse betingelser. Det kan f.eks dreje sig om anvendelsen af ejendommen eller alternative måder at opfylde hensynet bag bestemmelsen på.

     

  • Hvad må jeg bygge uden at søge?

    Du må opføre 50 kvm overdækning, garage, carport eller lignende mindre bygning til udhusformål uden at ansøge om det.

    Det kræver dog, at du ikke har andre lignende bygninger, da byggeriet sammenlagt ikke må være mere end 50 kvm. Hvis de tilsammen er mere end 50 kvm, skal du søge byggetilladelse.

  • Skal jeg søge om at opføre en altan eller en terrasse?

    En altan kræver altid byggetilladelse.

    En terrasse kræver som regel ikke tilladelse. Er terrassen hævet mere end 30 cm over terræn, kaldes den for et hævet opholdsareal og kræver en tilladelse.

  • Hvordan måler jeg højden, når min grund er skrånende?

    Du måler altid højden fra terræn, også selvom terrænet er skrånende.

    Hvis vi finder det rimeligt og hensigtsmæssigt, kan vi indlægge et niveauplan. Niveauplanet er en form for gennemsnit af terrænhøjden. Her vil højden blive målt fra niveauplanet og ikke fra terræn.

  • Må jeg have erhverv i egen bolig?

    Det er som udgangspunkt tilladt at drive liberalt erhverv i egen bolig.

    Eksempler på liberale erhverv er: ejendoms- advokat-, revisor-, og arkitektvirksomhed, frisør, klinik og privat børnepasning med pasning af op til 5 børn (dagpleje)

    Det kræver ikke tilladelse at indrette liberalt erhverv, men det er en forudsætning at:

    • Erhvervet kun drives af den, der bor i boligen, og der må ikke være ansatte
    • Erhvervet må ikke være til gene for de omkringboende, og der må ikke ændres på ejendommens eller områdets karakter af beboelse
    • Der må kun være diskret skiltning og kun efter tilladelse fra kommunen
    • Der skal være mulighed for parkering på egen grund
  • Hvordan ændrer jeg status fra 2-familehus til enfamiliehus?

    Du skal søge om at ændre et 2-familiehus til et enfamiliehus, da det kræver en tilladelse efter boligreguleringsloven.

    Det kræver ingen byggetilladelse, men du modtager et brev fra kommunen, hvor vi bekræfter anvendelsesændringen.

  • Skal jeg søge om at nedrive en bygning?

    Når du ønsker at nedrive en bygning, skal du søge en tilladelsen via Byg og Miljø.

    Når du søger om at nedrive en bygning, skal du vedhæfte et oversigtskort, hvor du markerer hvilke bygninger du ønsker at nedrive.

     

  • Hvor finder jeg de byggesager, der tidligere har været på min ejendom?

    Du kan i vores digitale byggesagsarkiv finde

    • Offentlige dokumenter om en ejendom, herunder byggesager, fra hele ejendommens levetid

    Åbn vores digitale byggesagsarkiv

    Hvad gør jeg, hvis der ikke er tegninger på min ejendom?

    • Er der ingen tegninger på din adresse i vores arkiv, har vi formentlig ikke nogen.
    • Har du for eksempel brug for et matrikelkort, må du kontakte en landinspektør.
  • Kan jeg fritages for byggeskadeforsikring?

    Selvbygger

    Hvis du er selvbygger og selv skal bo i boligen kan du fritages for byggeskadeforsikring.

    Du skal udfylde en tro log love erklæring

    Ved opførelse af flere boliger kan du kun fritages ved den bolig du selv skal bo i.

    Udlejningsejendomme

    Opførelse af ejendomme, som skal udlejes kan du fritages ved at udfylde en tro og love erklæring

     

     

  • Skal jeg selv bestille nye affaldsbeholdere?

    Ja, du skal selv kontakte AffaldGenbrug på mail:

    ressourcergenbrug@vejle.dk

    Sørg for at bestille i god tid, da der kan gå op til 14 dage, inden beholderne leveres.

    Læs mere på Ressourcer & Genbrug

     

     

Sidst opdateret: